摄氏度信息科技(上海)有限公司
400-112-8028
SOLIDWORKS Inspection

SOLIDWORKS Inspection 是一款专业的首件检验报告和现场检查软件,可以减少创建检查文档所需的时间,从而帮助您消除输入错误,提高质量,并提高产品上市速度。官方授权代理商上海摄氏度为您提

获取报价
SOLIDWORKS Inspection

为什么选择 SOLIDWORKS Inspection

SOLIDWORKS Inspection 是一款专业的首件检验报告和现场检查软件,可以减少创建检查文档所需的时间,从而帮助您消除输入错误,提高质量,并提高产品上市速度。它通过自动化识别和提取2D工程图中的尺寸与公差信息,将原本耗时、易出错的手工创建检测文档流程,转变为快速、准确的自动化作业。选择它,意味着能直接利用现有CAD数据,无缝生成符合行业标准(如AS9102、PPAP)的检测文档,显著缩短准备时间、消除人为抄写错误,并确保制造环节对设计意图的精确验证,是连接设计与质量控制的效率桥梁。

官方授权代理商上海摄氏度为您提供专业的SOLIDWORKS Inspection解决方案与本地化服务。


SOLIDWORKS Inspection产品特点
自动化识别与填充

自动化识别与填充

可自动或半自动识别PDF、TIFF或原生SOLIDWORKS工程图中的尺寸、公差和属性,并一键填充至检测报告中,效率提升显著。

与设计数据强关联

与设计数据强关联

直接利用现有设计数据,确保检测要求与工程图源头一致。当工程图修订时,可快速同步和更新关联的检测项目。

输出灵活,符合标准

输出灵活,符合标准

能生成带唯一编号、特征标识(气泡图)的首件检验报告、检查表及各种行业标准格式文档,支持导出为Excel、PDF等通用格式。

SOLIDWORKS Inspection产品特点
自动化识别与填充

自动化识别与填充

可自动或半自动识别PDF、TIFF或原生SOLIDWORKS工程图中的尺寸、公差和属性,并一键填充至检测报告中,效率提升显著。

与设计数据强关联

与设计数据强关联

直接利用现有设计数据,确保检测要求与工程图源头一致。当工程图修订时,可快速同步和更新关联的检测项目。

输出灵活,符合标准

输出灵活,符合标准

能生成带唯一编号、特征标识(气泡图)的首件检验报告、检查表及各种行业标准格式文档,支持导出为Excel、PDF等通用格式。

SOLIDWORKS Inspection产品介绍

简化文档创建以帮助理顺零件检查并提高质量 您对质量的承诺不应消极影响到您的业务,但您可以每天尽量将时间花费在为质量检查手动创建文档方面。SOLIDWORKS Inspection 有助于简化创建检查文档和执行过程中检查或接受检查的流程。
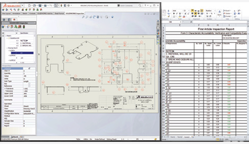
直观易用的 SOLIDWORKS Inspection 可以利用现有 2D 遗留数据(无论文件类型为 SOLIDWORKS 文件、PDF 还是 TIFF)来帮助理顺带有零件序号标注和规格的文档的创建过程,并使手动且繁琐的流程实现自动化。可使用数字式测量仪器(例如 USB 卡尺),以手动或自动方式直接输入所测得的检查值。SOLIDWORKS Inspection 可帮助设计人员和质量检查员几乎消除所有错误、缩短上市时间并确保零件符合规格,从而提高质量并优化配合与功能。

您对质量的承诺不应消极影响到您的业务,但您可以每天尽量将时间花费在为质量检查手动创建文档方面。SOLIDWORKS Inspection 有助于简化创建检查文档和执行过程中检查或接受检查的流程。

直观易用的 SOLIDWORKS Inspection 可以利用现有 2D 遗留数据(无论文件类型为 SOLIDWORKS 文件、PDF 还是 TIFF)来帮助理顺带有零件序号标注和规格的文档的创建过程,并使手动且繁琐的流程实现自动化。可使用数字式测量仪器(例如 USB 卡尺),以手动或自动方式直接输入所测得的检查值。SOLIDWORKS Inspection 可帮助设计人员和质量检查员几乎消除所有错误、缩短上市时间并确保零件符合规格,从而提高质量并优化配合与功能。

光学字符识别 (OCR) 在许多公司中,工程图的格式是 PDF 或 TIFF。在这些情况中,SOLIDWORKS Inspection 使用 OCR 来读取和识别标称尺寸、正负公差和尺寸类型(例如直径或线性),从而帮助几乎完全消除手动输入并减少错误。该软件可处理水平和垂直尺寸、分割尺寸、注释、孔标注、粗糙度符号以及几何尺寸和公差 (GD&T) 符号。
这意味着无论您现有的 CAD 系统是什么,借助随附的SOLIDWORKS Inspection 单机版,您都可以创建检查文档。

在许多公司中,工程图的格式是 PDF 或 TIFF。在这些情况中,SOLIDWORKS Inspection 使用 OCR 来读取和识别标称尺寸、正负公差和尺寸类型(例如直径或线性),从而帮助几乎完全消除手动输入并减少错误。该软件可处理水平和垂直尺寸、分割尺寸、注释、孔标注、粗糙度符号以及几何尺寸和公差 (GD&T) 符号。

这意味着无论您现有的 CAD 系统是什么,借助随附的SOLIDWORKS Inspection 单机版,您都可以创建检查文档。

缩短上市时间 SOLIDWORKS Inspection 帮助您显著缩短生成检查报告所需的时间。只需点击几下,您就可以创建符合行业标准的检查报告(例如 AS9102、PPAP、ISO 13485),或使用功能强大的模板编辑器开发符合贵公司需求的报告。
此外,SOLIDWORKS Inspection 可帮助避免传统上由于手工输入数据导致的错误和不一致问题。您可以消除质量检查中的瓶颈并提高制造的产出量,从而节省时间、降低成本并赢得更多业务。

SOLIDWORKS Inspection 帮助您显著缩短生成检查报告所需的时间。只需点击几下,您就可以创建符合行业标准的检查报告(例如 AS9102、PPAP、ISO 13485),或使用功能强大的模板编辑器开发符合贵公司需求的报告。

此外,SOLIDWORKS Inspection 可帮助避免传统上由于手工输入数据导致的错误和不一致问题。您可以消除质量检查中的瓶颈并提高制造的产出量,从而节省时间、降低成本并赢得更多业务。

帮助提高产品质量并节省资金 检查文档可帮助贵公司显著改善制造流程、减少废料、缩短产品上市时间并提高产品质量和可靠性。由于 SOLIDWORKS Inspection 易于使用、与 SOLIDWORKS CAD 集成,并且可作为独立的应用程序与您现有的 CAD 系统配合使用,因此您可以轻松部署该软件、培训质量部门并开始优化检查和质量流程。

检查文档可帮助贵公司显著改善制造流程、减少废料、缩短产品上市时间并提高产品质量和可靠性。由于 SOLIDWORKS Inspection 易于使用、与 SOLIDWORKS CAD 集成,并且可作为独立的应用程序与您现有的 CAD 系统配合使用,因此您可以轻松部署该软件、培训质量部门并开始优化检查和质量流程。

SOLIDWORKS Inspection产品介绍

简化文档创建以帮助理顺零件检查并提高质量 您对质量的承诺不应消极影响到您的业务,但您可以每天尽量将时间花费在为质量检查手动创建文档方面。SOLIDWORKS Inspection 有助于简化创建检查文档和执行过程中检查或接受检查的流程。
直观易用的 SOLIDWORKS Inspection 可以利用现有 2D 遗留数据(无论文件类型为 SOLIDWORKS 文件、PDF 还是 TIFF)来帮助理顺带有零件序号标注和规格的文档的创建过程,并使手动且繁琐的流程实现自动化。可使用数字式测量仪器(例如 USB 卡尺),以手动或自动方式直接输入所测得的检查值。SOLIDWORKS Inspection 可帮助设计人员和质量检查员几乎消除所有错误、缩短上市时间并确保零件符合规格,从而提高质量并优化配合与功能。

您对质量的承诺不应消极影响到您的业务,但您可以每天尽量将时间花费在为质量检查手动创建文档方面。SOLIDWORKS Inspection 有助于简化创建检查文档和执行过程中检查或接受检查的流程。

直观易用的 SOLIDWORKS Inspection 可以利用现有 2D 遗留数据(无论文件类型为 SOLIDWORKS 文件、PDF 还是 TIFF)来帮助理顺带有零件序号标注和规格的文档的创建过程,并使手动且繁琐的流程实现自动化。可使用数字式测量仪器(例如 USB 卡尺),以手动或自动方式直接输入所测得的检查值。SOLIDWORKS Inspection 可帮助设计人员和质量检查员几乎消除所有错误、缩短上市时间并确保零件符合规格,从而提高质量并优化配合与功能。

光学字符识别 (OCR) 在许多公司中,工程图的格式是 PDF 或 TIFF。在这些情况中,SOLIDWORKS Inspection 使用 OCR 来读取和识别标称尺寸、正负公差和尺寸类型(例如直径或线性),从而帮助几乎完全消除手动输入并减少错误。该软件可处理水平和垂直尺寸、分割尺寸、注释、孔标注、粗糙度符号以及几何尺寸和公差 (GD&T) 符号。
这意味着无论您现有的 CAD 系统是什么,借助随附的SOLIDWORKS Inspection 单机版,您都可以创建检查文档。

在许多公司中,工程图的格式是 PDF 或 TIFF。在这些情况中,SOLIDWORKS Inspection 使用 OCR 来读取和识别标称尺寸、正负公差和尺寸类型(例如直径或线性),从而帮助几乎完全消除手动输入并减少错误。该软件可处理水平和垂直尺寸、分割尺寸、注释、孔标注、粗糙度符号以及几何尺寸和公差 (GD&T) 符号。

这意味着无论您现有的 CAD 系统是什么,借助随附的SOLIDWORKS Inspection 单机版,您都可以创建检查文档。

缩短上市时间 SOLIDWORKS Inspection 帮助您显著缩短生成检查报告所需的时间。只需点击几下,您就可以创建符合行业标准的检查报告(例如 AS9102、PPAP、ISO 13485),或使用功能强大的模板编辑器开发符合贵公司需求的报告。
此外,SOLIDWORKS Inspection 可帮助避免传统上由于手工输入数据导致的错误和不一致问题。您可以消除质量检查中的瓶颈并提高制造的产出量,从而节省时间、降低成本并赢得更多业务。

SOLIDWORKS Inspection 帮助您显著缩短生成检查报告所需的时间。只需点击几下,您就可以创建符合行业标准的检查报告(例如 AS9102、PPAP、ISO 13485),或使用功能强大的模板编辑器开发符合贵公司需求的报告。

此外,SOLIDWORKS Inspection 可帮助避免传统上由于手工输入数据导致的错误和不一致问题。您可以消除质量检查中的瓶颈并提高制造的产出量,从而节省时间、降低成本并赢得更多业务。

帮助提高产品质量并节省资金 检查文档可帮助贵公司显著改善制造流程、减少废料、缩短产品上市时间并提高产品质量和可靠性。由于 SOLIDWORKS Inspection 易于使用、与 SOLIDWORKS CAD 集成,并且可作为独立的应用程序与您现有的 CAD 系统配合使用,因此您可以轻松部署该软件、培训质量部门并开始优化检查和质量流程。

检查文档可帮助贵公司显著改善制造流程、减少废料、缩短产品上市时间并提高产品质量和可靠性。由于 SOLIDWORKS Inspection 易于使用、与 SOLIDWORKS CAD 集成,并且可作为独立的应用程序与您现有的 CAD 系统配合使用,因此您可以轻松部署该软件、培训质量部门并开始优化检查和质量流程。

SOLIDWORKS Inspection软件包
SOLIDWORKS Inspection软件包

SOLIDWORKS Inspection

SOLIDWORKS Inspection 是一款专业的首件检验报告和现场检查软件,可以减少创建检查文档所需的时间,从而帮助您消除输入错误,提高质量,并提高产品上市速度。官方授权代理商上海摄氏度为您提

免费试用
400-112-8028

© 2014-2026   摄氏度信息科技(上海)有限公司 All rights reserved. 沪ICP备19047552号-2 技术支持:赛虎科技